Sunset District Housing Competition entry,

San Francisco CA

Designed as John G. Ellis Architect with Dicko Ba, 2023

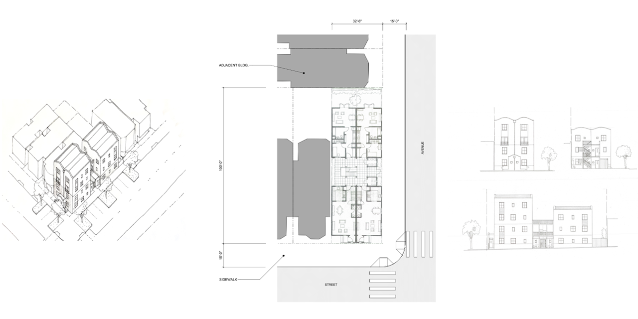
The SF AIA organized an ideas competition to explore how to achieve higher density multi0family housing in San Francisco’s Sunset District. With the changes in the Planning Code to replace Single Family zoning, the competition was intended to demonstrate how multi-family housing could be accommodated within the existing context without necessarily provoking the usual NIMBY firestorm.

The competition was made realistic by the elimination of any on-site parking, especially challenging on narrow midblock parcels.

Two sites were developed, one midblock parcel which could accommodate a six-plex, and a corner parcel that could accommodate an eight-plex.

In both cases the architectural language was modest and unassuming in order not to frighten the neighbors!

Previous
Previous

Family House, Corte Madera CA

Next
Next

Humanities Building, San Jose State University, San Jose CA